The Drachman Design-Build Coalition Residence 6: Innovation with building materials and design-build pedagogy

Researchers
- UArizona Bachelor of Architecture and Master of Architecture students
- Mary Hardin, University Distinguished Professor of Architecture
Community Partners
Project Details
Budget: $121,000, funded by Pima County Industrial Development Authority
Where: Tucson, Arizona
When: August 2011 - May 2012
Project Overview
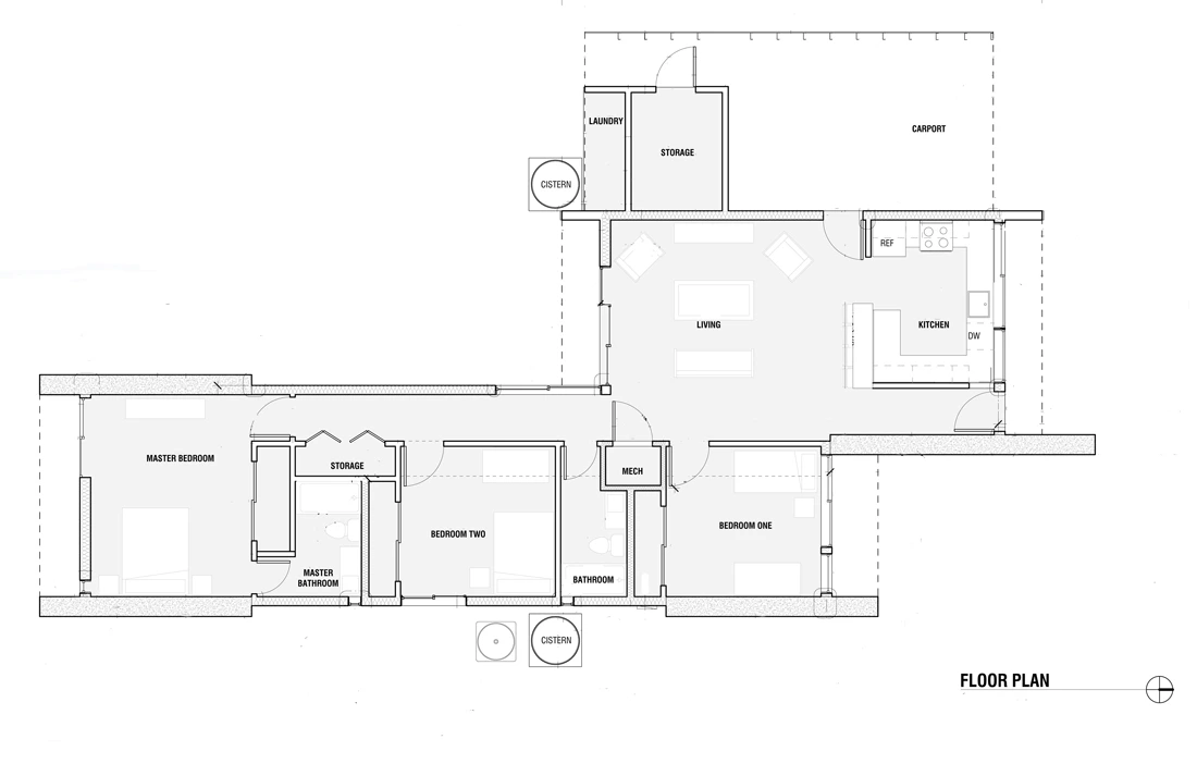
1140 E. 15th St. (rammed earth construction) Funded by Pima County IDA Loan, Civano Demonstration Grant, and Pima County GO Bonds; designed and constructed by the CAPLA students and faculty. Completed in 2012. The total cost for the residence (including general conditions, warranties, loan interest, and escrow was $121,000. City of Tucson down payment assistance reduced the mortgage cost to $115,000. Purchased by the Amber Coyle family. This is a built residence for low income family, 2 peer-reviewed conference papers and received 1 design award.
Project Gallery
Click image to view larger size and begin slideshow: